Client

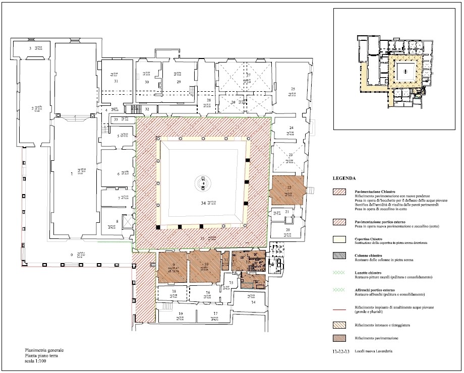
Monastero di Santa Maria del Carmine al Morrocco

Restoration Planning and Construction Survey

Tavarnelle Val di Pesa / Florence

Contact

Let's create impact together

2025 plenARC

Contact

Let's create impact together

2025 plenARC

Contact

Let's create impact together

2025 plenARC